About
Bio
Contact
Projects
. gaia museu ambiente
. apartamento em cascais
. apartamento em paço d'arcos
. museu nacional da música
. habitação em entrecampos
. casa no vale da castanheira
. escola básica de caselas
. casa de são lourenço
. apartamento em Oeiras
. riga circus
. new cyprus museum
. museu do megalitismo
. biblioteca e museu do brinquedo
. portugal dos pequenitos
. instituto missionário - benguela
. capela Jesus Mestre
. lounge Aeroporto de Lisboa I
. lounge Aeroporto de Lisboa II
. museu de Santo António
. auditório/sala de formação EMEL
. biblioteca de são paulo
. Abu Dhabi Media - estudio 03
. CEPS em Lisboa
. museus da Politécnica
. museu em Piraeus, Grécia
. residências assistidas
. livraria Paulus III
. museu da farmácia
. casa em Alvor
. habitação à Estrela
. habitação ao Conde Barão
. apartamento ao Príncipe Real
Built with
Indexhibit
Designed by
P-06 ATELIER
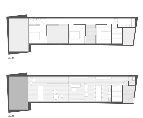
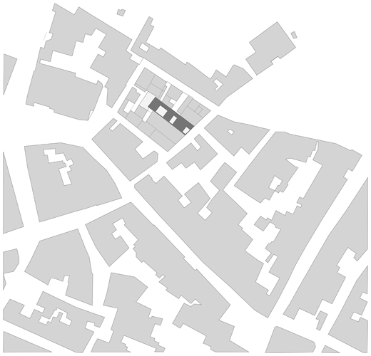
CASA UNIFAMILIAR EM ALVOR, PORTIMÃO
2009
não construído